LOADING

532 Prideaux St Nanaimo, British Columbia V9R 2N7

3 Bedroom 2 Bathroom 2668 sqft
None Forced Air

$604,000

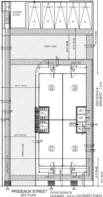
This centrally located property in the heart of Nanaimo offers an exceptional opportunity for small to mid-scale developers looking to enter or expand within the multi-family market. Currently operating as a single-family residence with consistent rental revenue, the true value lies in the development potential already unlocked. The City of Nanaimo has approved a development permit for a well-designed fourplex consisting of four three-bedroom units, each with family-oriented floorplans and private exterior balconies. Notably, two of the units will feature limited ocean views. Designed with both community and privacy in mind, each unit features a townhouse-style entry with its own exterior door. This layout not only enhances curb appeal but fosters a sense of individual identity and ownership while still creating a cohesive community atmosphere—an increasingly desirable feature among modern homebuyers. This project is a rare find in the Nanaimo market, where new three-bedroom units are in short supply. The design directly addresses the growing demand for attainable housing by providing family-sized units that can serve both the end-user homeowner and the long-term investor. The development fulfills all City parking requirements and has been thoughtfully conceived as a missing middle solution—offering practical density without compromising livability or neighborhood character. With the Development Permit in place and a well-positioned floorplan design in a supply-constrained market, this is a strong candidate for a build-to-sell or build-to-hold strategy. Measurements Approx. Verify if important. (id:55599)

Property Details

MLS® Number 996747
Property Type Single Family
Neigbourhood Old City
Parking Space Total 4
View Type Ocean View

Building

Bathroom Total 2
Bedrooms Total 3
Constructed Date 1910
Cooling Type None
Heating Fuel Natural Gas
Heating Type Forced Air
Size Interior 2668 Sqft
Total Finished Area 1334 Sqft
Type House

Parking

Stall

Land

Acreage No
Size Irregular 8793
Size Total 8793 Sqft
Size Total Text 8793 Sqft
Zoning Description R15
Zoning Type Residential

Rooms

Level Type Dimensions
Main Level Bathroom Measurements not available x 4 ft
Main Level Bathroom 7 ft x 6 ft
Main Level Bedroom 15'10 x 12'8
Main Level Bedroom 12'6 x 12'9
Main Level Bedroom 12 ft x 12 ft
Main Level Kitchen 17'3 x 13'7
Main Level Living Room 17'3 x 18'3
Main Level Entrance 12 ft x Measurements not available

https://www.realtor.ca/real-estate/28246966/532-prideaux-st-nanaimo-old-city

Interested?

Contact us for more information


Generating Captcha

Your Favourites

 

No Favourites Found

 

Contact Chris Peereboom PREC*

    All fields are required

    This site is protected by reCAPTCHA and the Google Privacy Policy and Terms of Service apply.